
3-izb Dargovských hrdinov- Charkovská, OV, 65m2+lodžia, 6.p
- Predaj
- 3-izbový byt
- 3 izb
- 65 m2
- Košice-Dargovských hrdinov
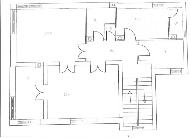
Doležel reality ponúka so súhlasom majiteľa na predaj veľkorysý 4 izbový byt v rodinnom dome s pozemkom v mestskej časti Košice – JUH, ulica Milosrdenstva. K bytu je možné dokúpiť garáž na pozemku.
Rodinný dom je právne vysporiadaný na 2 samostatné byty, každý s jedným majiteľom, čiastočne rekonštruovaný a kúpou ihneď voľný.
Byt na 1 poschodí o výmere 88 m2 s príslúchajúcou pivnicou 19 m2.
Pozostáva zo 4 izieb, predizby, kuchyne, komory, WC, kúpeľne. V byte boli menené pôvodné okná za plastové –3 sklo.
.
K bytu prislúcha spoločný pozemok o rozlohe 320 m2.
Je prístupný samostatným vstupom priamo z nádvoria domu, cez spoločné schodisko, ktoré vedie tiež k pivniciam a povale.
Každý byt má samostatné vykurovanie s prípravou teplej vody.
Samostatné merače elektrickej energie, vody a plynu sú samozrejmosťou.
K bytu je možné dokúpiť samostatú garáž s pozemkom 20 m2 čiastočne rekonštruovanú so zavedenou elektrinou, ktorá má prístup z ulice.
Rodinný dom je tehlový, zateplený, odizolovaný, krov zdravý drevený, pôjd a strecha renovované, menené okná na spoločných priestoroch.
Je napojený na všetky inžinierske siete.
Bližšie informácie záujemcom pri obhliadke uvedenej nehnuteľnosti
Bližšie informácie záujemcom pri obhliadke uvedenej nehnuteľnosti
Financovanie kúpy: vlastné zdroje, hypotekárny úver, stavebné sporenie.
Predaj zahŕňa: KOMPLETNÝ SERVIS, prehlásenie odberu médií ako elektrina, plyn, voda, finančné poradenstvo a sprostredkovanie hypotekárneho úveru.
Všetko Vám zabezpečíme kvalitne na základe viac ako 15 ROČNÝCH SKÚSENOSTÍ s prácou v realitnej kancelárii.
Neváhajte ma kontaktovať: Jana Mitalčáková: 0907 970 851
Ulica: | Milosrdenstva |
---|---|
Mestská časť: | Juh |
Obec: | Košice-Juh |
Okres: | Košice IV |
Kraj: | Košický kraj |
Druh: | Byty |
Typ: | Predaj |
Typ bytu: | 4-izbový byt |
Iné: |